Project Overview:
Weston Duo showcases how semi-detached custom homes can redefine Toronto’s infill landscape.
This project by Q Engineering features a pair of mirror homes carefully designed to meet local zoning, energy, and structural standards while maintaining elegance and functionality.
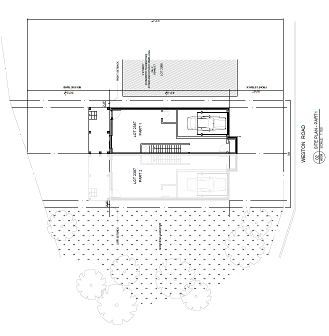
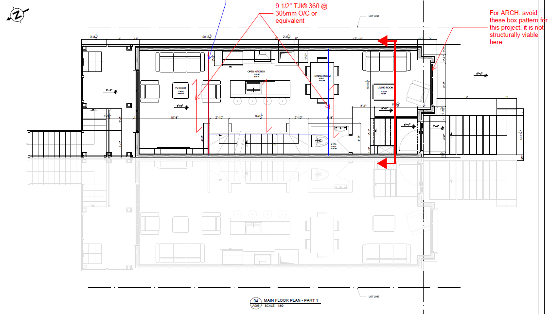
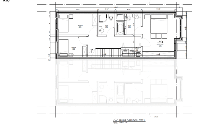
Each home includes a basement garage, open-concept main floor, and a second floor with three bedrooms and laundry — all optimized for family living in a compact footprint.
Design Overview
The semi-detached custom homes were designed to maximize livable space, daylight, and energy performance while maintaining privacy between the two units.
Each home includes a basement/garage level with utility spaces, an open main floor for flexible living and dining, and a second floor with functional bedroom layouts.
The design approach emphasizes both comfort and practicality, creating homes that are efficient, affordable, and ready for construction in Toronto’s growing infill zones.
Architectural Character
The Weston Duo architecture combines texture and proportion to achieve timeless curb appeal.
Warm brick contrasts with dark fluted cladding, white limestone trims, and black UPVC windows for a clean, elegant façade.
A pitched shingle roof ensures long-term durability, while subtle detailing — like defined entrances and balanced window groupings — strengthens the project’s contemporary-classic identity.
Engineering Highlights
-
Party-wall design and limiting-distance compliance
-
Engineered TJI® joists and LVL framing for efficient spans
-
32 MPa concrete and 120 kPa soil bearing capacity
-
Ontario Building Code & OHSA compliance
-
Coordinated structural and architectural packages for a smooth permit process
For more insight on residential infill engineering, see our Residential Services page.
Before and After
The July 2024 site visit documented a cleared lot ready for construction — now evolving into two elegant, energy-conscious family homes that exemplify Q Engineering’s expertise in semi-detached custom homes across the Greater Toronto Area.

The Result
Weston Duo introduces two code-tight, energy-efficient family homes that respect neighbourhood scale while maximizing livable area.
By combining modern materials with practical design, Q Engineering has created a sustainable and cost-effective model for Toronto infill housing.
Project Number: 140
Book A Free Consultation.







