Introduction
At Q Engineering, we believe that residential design should blend functionality, safety, and timeless appeal. The Multiplex Project in Paris, Ontario, is a prime example of how thoughtful engineering and smart design can turn an aging structure into a modern, efficient, and code-compliant residential building.
Located in one of the province’s most charming towns, this project showcases our firm’s ability to manage complex redevelopment—from initial concept and client coordination to full structural and permit-ready documentation.

Project Overview
Location: Paris, ON
Type: Multi-Residential Redevelopment (Duplex Replacement)
Project Size: Approx. 21 ft frontage × 41 ft depth
Scope: Full architectural, structural, mechanical, and HVAC design with city coordination until permit approval.
The client’s goal was to replace an existing duplex with a new multi-residential home that would maintain the neighborhood character while expanding living space and improving structure, comfort, and energy efficiency.
The design includes:
-
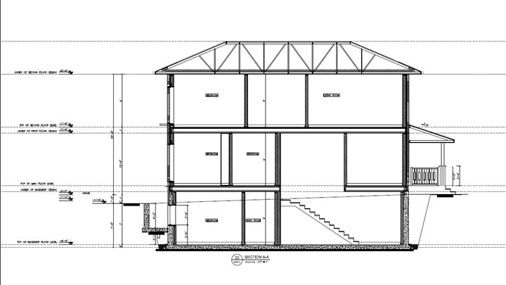
A 9-foot basement with a separate entrance, featuring two bedrooms, a full washroom, laundry, and mechanical room.
-
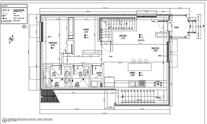
A main floor with an open-concept kitchen, living room, and a master bedroom with ensuite.
-
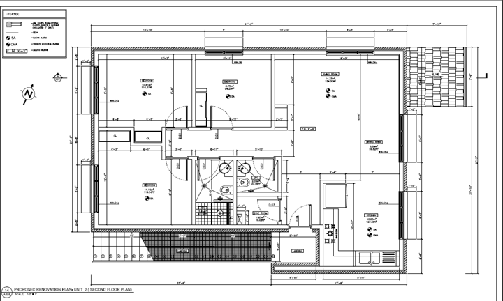
A second floor mirroring the main layout, slightly expanded to maximize space within zoning limits.
This new design provides a modern duplex that’s functional, affordable, and ready to meet the city’s growing demand for multi-unit residential housing.

Engineering Challenges
Every redevelopment comes with its unique set of challenges.
For this project, Q Engineering faced three key technical considerations:
-
Structural Reinforcement:
The existing framing and ceiling joists were outdated and needed to be replaced or sistered with steel supports for modern load standards. -
Space Constraints:
The narrow lot and 21-foot frontage required a strategic layout to maintain livable interior space while meeting zoning and fire separation codes. -
Municipal Compliance:
As the city’s regulations limited certain duplex features, our team had to prepare detailed pre-consultation drawings and adjust the design to comply with the local bylaws and Ontario Building Code.

Q Engineering’s Solutions
Our multidisciplinary team handled the project from concept to coordination, providing a full suite of services:
1. Comprehensive Design Packages
We developed complete architectural, structural, HVAC, and mechanical drawings to ensure all components integrated seamlessly.
Steel beams were strategically introduced for load-bearing replacements, improving durability and allowing for open-concept interiors.
2. City Coordination & Pre-Consultation
We prepared all permit-ready documentation and engaged with the municipality for pre-consultation, ensuring a smooth approval path.
Our early involvement reduced costly design changes and improved project efficiency.
3. Value-Driven Design Approach
While the client preferred to match the existing façade, we proposed cost-effective, low-maintenance materials to enhance longevity without compromising aesthetic appeal.
By blending technical precision with practical solutions, Q Engineering ensured the project stayed aligned with the client’s budget and vision.

Conclusion
The Multiplex Project demonstrates how Q Engineering transforms older properties into high-performing residential assets.
Our integrated engineering approach, combining design quality, technical expertise, and regulatory coordination, ensures every project moves from vision to reality — efficiently and with integrity.
If you’re considering redeveloping, expanding, or building a multi-residential project in Ontario, connect with our team today.
We’ll guide you from concept to completion — with results that exceed expectations.
📞 Contact us: info@qengineering.ca

